Engineering - planning is the basis of success

If you are planning a new production line in your core shop or wish to modify an existing plant, contact us. We will be happy to help you realize this complex process with our excellent engineering services.

Success is built on good engineering

The initial planning or revision of a production line in a core shop is a complex challenge for any company. The required output quantity in a given period must be ensured - as must the quality. Extremely varied technical and technological aspects as well as local conditions need to be taken into account. Individual work steps and process cycles need to be defined. All this can be achieved with a detailed engineering process and the help of experienced experts in advance.

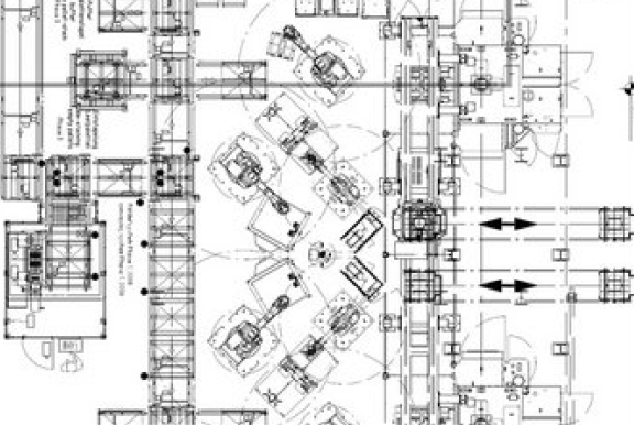
Technical drawing

We have an integral approach

Laempe Mössner Sinto sees engineering as the detailed technical formulation of a solution concept for the realisation of complex and specific customer requirements for core shops. The formulation of a technical solution includes shaping and optimising relevant work processes with regard to efficiency, organisation, and ergonomics.

Our integrated approach will provide you a tailored solution

Our engineering team will create a complete plan of your core shop including a layout. All of your specific parameters will be taken into account: production quantities, space utilisation plans, product specifications, production conditions, and daily operating times in single or multiple shift operation. In addition, important suppliers such as toolmakers will be involved during the engineering phase in order to prevent compatibility problems later on.

The result: Well-grounded specifications for the realization phase

We simulate the feasibility of complex production lines using 3D process and material flow simulations and make optimizations regarding cycle times, production flows, and collision problems. Extensive calculations are used to provide comprehensive specifications for the planned production line, such as the number of required machines and peripheral devices, the required quantity of consumable materials, and the appropriate level of automation.